広島市安佐南区西原1LDK|広島の賃貸リノベーションなら良和ハウス

 
広島の不動産・賃貸なら良和ハウスTOP >  リノベーション賃貸「匠」>  シェソワ祇園 404号室
『匠』No.13 どこにもない、オリジナルの部屋 『匠』No.13 どこにもない、オリジナルの部屋

『匠』No.13 どこにもない、オリジナルの部屋

『匠』のリノベーション

はじまりは『広島でおしゃれなリノベーション物件を』『どこにも無いオリジナルな部屋に住みたい』という想い。
しかし、現在の広島のリノベーションやDIYができるお部屋が少ない状況です。
そこで私たちは様々なクリエイター達と一緒に、新築では表現できない、古い味を活かした賃貸物件をつくる事を考えました。

普段着であるジーンズも月日を経た年代物は「ヴィンテージ」として価値付けされています。
建物やインテリアも同様に古さと新しさの関係を丁寧に整理することで, 新品にない価値を生み、個性となるのではないでしょうか。
この空間では、腰下半分だけを仕上げそれ以外はなるべく手を加えず 古い躯体の表情を残し「懐かしさ」と「新しさ」
このふたつの対比が 同居する空間としています。
未完成につくることで、住まうことを 楽しむ余白のある豊かな空間をご提案していきたいと考えています。

良和ハウスリノベーションプロジェクト >

物件概要

所在地 広島市安佐南区西原
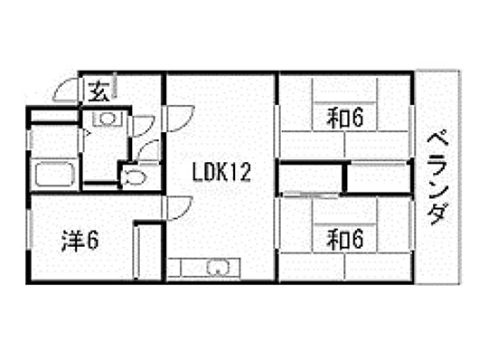
間取り 改装前:3LDK / 改装後:1LDK

ビフォーアフター

木のぬくもりとコンクリートの対比が面白い1LDKへ

※家具や観葉植物はイメージです。賃貸内容には含まれません。

Before

ビフォー

After

アフター

Before

ビフォー

After

アフター

Before

ビフォー

After

アフター

リノベーションプラン

解放感ある広い空間へ

3LDKだった間取りを1LDKへリノベーションいたしました。
2部屋あった和室は壁を取り、解放感のある1つの空間へ生まれ変わりました。

玄関

玄関

バルコニー

バルコニー

トイレ

トイレ

間取り

Before

間取りBefore

After

間取りAfter

物件の周辺情報

周辺環境

周辺環境

周辺環境

周辺環境

周辺の施設

  • ショッピングセンター
    ゆめタウン祇園店/徒歩4分
  • スーパー
    フレスタ祇園店/徒歩2分
  • コンビニ
    セブンイレブン西原2丁目店/徒歩5分
  • ドラッグストア
    ハーティウォンツ祇園店/徒歩11分

Google MAP